D plus Vastgoed BV
Eugeen Woutersstraat 61
2220
Heist-op-den-Berg
[object Object]
E.info@dplusvastgoed.be
Woning met magazijn te Booischot € 369.000
Nieuw
Klein Pijpelstraat 31, 2221 Booischot
Ref: YD
Deze rustig gelegen woning bevindt zich aan de rand van Booischot, op aangename fietsafstand van het treinstation. U geniet hier van een groene en rustige omgeving, met een vlotte bereikbaarheid naar omliggende gemeenten en voorzieningen.
De woning is momenteel nog in afwerking (“under construction”), maar de belangrijkste renovatiewerken zijn reeds uitgevoerd. Zo werden onder meer een nieuwe keuken en badkamer geplaatst, zijn de ramen vernieuwd en werden de vloeren reeds aangepakt. Het is voornamelijk de verdere afwerking — zoals binnendeuren, schilderwerken, valse plafonds en plinten — die nog dient te gebeuren. Dit biedt u de ideale kans om de woning volledig naar eigen smaak af te werken.
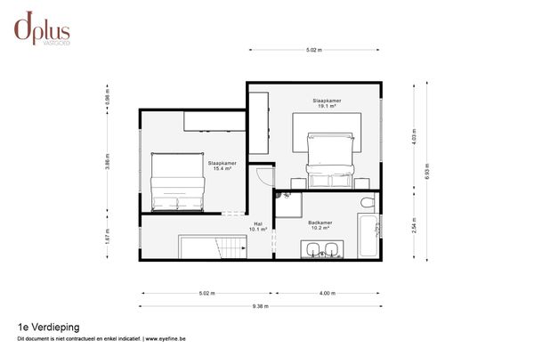
Het gelijkvloers omvat een inkomhal, een gezellige leefruimte, een open keuken, een praktische berging, een gastentoilet en een veranda met zicht op de tuin. Op de verdieping bevinden zich twee slaapkamers en een ruime badkamer uitgerust met een bad, douche, dubbele lavabo en toilet.
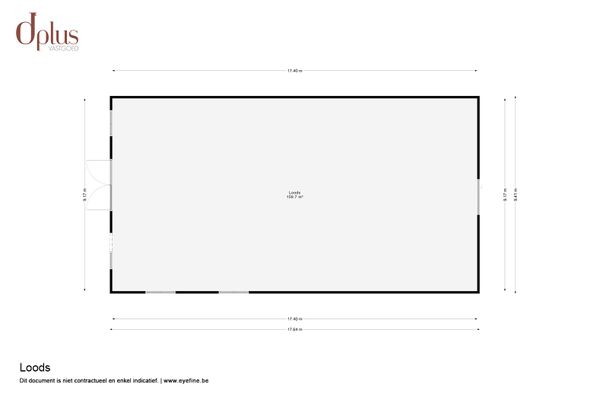
Buiten geniet u van een ruime tuin met bovendien een grote loods van maar liefst ca. 160 m², ideaal voor hobbyisten, opslag of professionele doeleinden.
Bovenal een woning met veel potentieel voor wie op zoek is naar ruimte, rust en de mogelijkheid om zelf de laatste hand te leggen aan de afwerking.
Ontdek deze woning reeds via onze foto's.
Ga hiervoor naar www.dplusvastgoed.be en klik op de detailpagina van de woning.
Voor meer informatie of voor een bezoek bel GSM 0475 59 90 00 of mail yves@dplusvastgoed.be
De woning is momenteel nog in afwerking (“under construction”), maar de belangrijkste renovatiewerken zijn reeds uitgevoerd. Zo werden onder meer een nieuwe keuken en badkamer geplaatst, zijn de ramen vernieuwd en werden de vloeren reeds aangepakt. Het is voornamelijk de verdere afwerking — zoals binnendeuren, schilderwerken, valse plafonds en plinten — die nog dient te gebeuren. Dit biedt u de ideale kans om de woning volledig naar eigen smaak af te werken.
Het gelijkvloers omvat een inkomhal, een gezellige leefruimte, een open keuken, een praktische berging, een gastentoilet en een veranda met zicht op de tuin. Op de verdieping bevinden zich twee slaapkamers en een ruime badkamer uitgerust met een bad, douche, dubbele lavabo en toilet.
Buiten geniet u van een ruime tuin met bovendien een grote loods van maar liefst ca. 160 m², ideaal voor hobbyisten, opslag of professionele doeleinden.
Bovenal een woning met veel potentieel voor wie op zoek is naar ruimte, rust en de mogelijkheid om zelf de laatste hand te leggen aan de afwerking.
Ontdek deze woning reeds via onze foto's.
Ga hiervoor naar www.dplusvastgoed.be en klik op de detailpagina van de woning.
Voor meer informatie of voor een bezoek bel GSM 0475 59 90 00 of mail yves@dplusvastgoed.be
| Naam |
Yves Dockx
|
| Prijs |
€ 369.000
|
| KI (niet geïndexeerd) |
€ 446
|
Gelijkvloers
| 2x Slaapkamer |
|
| EPC |
385 kWh/m2/jaar
|
| Label |
|
385 kWh/m2/jaar
| Totale opp. grond |
766 m²
|
| Beglazing |
Dubbele
|
| Bouwjaar |
1952
|
| Lift |
Neen
|
| Bouwvergunning |
Bouw vergund
|
| Verkavelingsvergunning |
Niet ingegeven
|
| Voorkooprecht |
Neen
|
| Beschermd erfgoed |
Neen
|
| Renovatieplicht |
Niet ingegeven
|
Laten we de kosten berekenen
false
1.5%
20 jaar
EUR/maand