D plus Vastgoed BV
Eugeen Woutersstraat 61
2220
Heist-op-den-Berg
[object Object]
E.info@dplusvastgoed.be
Charmante en instapklare woning in hartje Berlaar € 395.000
Schoolstraat 46, 2590 Berlaar
Ref: YD
Deze charmante en zeer praktische woning is rustig gelegen en toch centraal in Berlaar, met alle voorzieningen binnen handbereik.
De woning verkeert in zeer goede staat en werd steeds uitstekend onderhouden, waardoor ze meteen instapklaar is. In 2018 werd ze gedeeltelijk gerenoveerd en ook in 2022 kreeg het gelijkvloers nog een opfrissing.
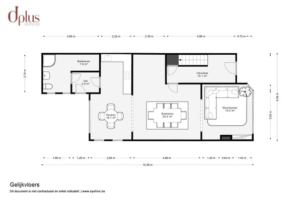
Op het gelijkvloers vindt u een gezellige living met een duidelijk woon- en eetgedeelte, een functionele keuken en een praktische wasplaats uitgerust met douche en toilet.
De eerste verdieping beschikt over twee ruime slaapkamers en een derde, kleinere kamer die perfect kan dienen als kinderkamer, bureau of dressing. Daarnaast is er een praktische zolder met ingemaakte kasten, ideaal voor extra opbergruimte.
Buiten geniet u van het terras met luifel in een sfeervolle en onderhoudsvriendelijke achtertuin met kunstgras, perfect om te ontspannen zonder veel onderhoud. Bovendien is er een garage, wat een extra troef vormt.
Een ideale woning voor wie comfortabel wil wonen op een rustige locatie, zonder in te boeten aan bereikbaarheid en praktisch comfort.
Bekijk nu reeds de foto's en virtuele tour op onze website www.dplusvastgoed.be
Voor meer informatie of voor een bezoek bel 0475 59 90 00 of mail yves@dplusvastgoed.be
De woning verkeert in zeer goede staat en werd steeds uitstekend onderhouden, waardoor ze meteen instapklaar is. In 2018 werd ze gedeeltelijk gerenoveerd en ook in 2022 kreeg het gelijkvloers nog een opfrissing.
Op het gelijkvloers vindt u een gezellige living met een duidelijk woon- en eetgedeelte, een functionele keuken en een praktische wasplaats uitgerust met douche en toilet.
De eerste verdieping beschikt over twee ruime slaapkamers en een derde, kleinere kamer die perfect kan dienen als kinderkamer, bureau of dressing. Daarnaast is er een praktische zolder met ingemaakte kasten, ideaal voor extra opbergruimte.
Buiten geniet u van het terras met luifel in een sfeervolle en onderhoudsvriendelijke achtertuin met kunstgras, perfect om te ontspannen zonder veel onderhoud. Bovendien is er een garage, wat een extra troef vormt.
Een ideale woning voor wie comfortabel wil wonen op een rustige locatie, zonder in te boeten aan bereikbaarheid en praktisch comfort.
Bekijk nu reeds de foto's en virtuele tour op onze website www.dplusvastgoed.be
Voor meer informatie of voor een bezoek bel 0475 59 90 00 of mail yves@dplusvastgoed.be
| Naam |
Yves Dockx
|
| Prijs |
€ 395.000
|
| KI (niet geïndexeerd) |
€ 537
|
Gelijkvloers
| 4x Slaapkamer |
|
| EPC |
454 kWh/m2/jaar
|
| Label |
|
454 kWh/m2/jaar
| Totale opp. grond |
285 m²
|
| Beglazing |
Dubbele
|
| Bouwjaar |
1955
|
| Lift |
Neen
|
| Bouwvergunning |
Bouw vergund
|
| Verkavelingsvergunning |
Neen
|
| Voorkooprecht |
Neen
|
| Beschermd erfgoed |
Neen
|
| Renovatieplicht |
Niet ingegeven
|
Laten we de kosten berekenen
false
1.5%
20 jaar
EUR/maand