D plus Vastgoed BV
Kleine Hooiweg 1 E
2220
Heist-op-den-Berg
E.info@dplusvastgoed.be
Ruim dakappartement met 2 slpkm en groot terras in het centrum van Westerlo € 379.000
Nieuw
Grote Markt 13/H, 2260 Westerlo
Ref: YD
Op zoek naar een instapklaar appartement met alle comfort én een topligging?
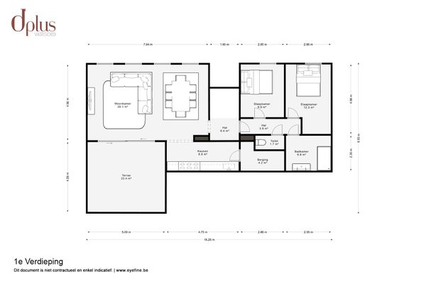
Dit ruime en lichtrijke dakappartement, centraal gelegen in het hartje van Westerlo, biedt alles wat u nodig heeft voor aangenaam wonen.
Bij het binnenkomen wordt u verwelkomd door een royale living met veel natuurlijke lichtinval en een geïntegreerde keuken. Daarnaast beschikt het appartement over een praktische berging, twee volwaardige slaapkamers, een badkamer met bad en douche, en een apart toilet.
Een groot pluspunt is het ruime terras waar u volop kan genieten van de buitenlucht.
Bovendien beschikt het appartement over een ondergrondse parkeerplaats én een grote private berging in de kelder.
Het gebouw is uitgerust met een lift, wat zorgt voor extra comfort en toegankelijkheid.
Dit appartement combineert ruimte, comfort en een uitstekende ligging – ideaal voor zowel eigen bewoning als investering.
Interesse? Contacteer ons snel voor meer informatie of een bezichtiging!
Ontdek dit appartement reeds via onze foto's en onze virtuele tour.
Ga hiervoor naar www.dplusvastgoed.be en klik op de detailpagina van de woning.
Voor een bezoek of meer info BEL: 0475 59 90 00 of mail naar yves@dplusvastgoed.be
Dit ruime en lichtrijke dakappartement, centraal gelegen in het hartje van Westerlo, biedt alles wat u nodig heeft voor aangenaam wonen.
Bij het binnenkomen wordt u verwelkomd door een royale living met veel natuurlijke lichtinval en een geïntegreerde keuken. Daarnaast beschikt het appartement over een praktische berging, twee volwaardige slaapkamers, een badkamer met bad en douche, en een apart toilet.
Een groot pluspunt is het ruime terras waar u volop kan genieten van de buitenlucht.
Bovendien beschikt het appartement over een ondergrondse parkeerplaats én een grote private berging in de kelder.
Het gebouw is uitgerust met een lift, wat zorgt voor extra comfort en toegankelijkheid.
Dit appartement combineert ruimte, comfort en een uitstekende ligging – ideaal voor zowel eigen bewoning als investering.
Interesse? Contacteer ons snel voor meer informatie of een bezichtiging!
Ontdek dit appartement reeds via onze foto's en onze virtuele tour.
Ga hiervoor naar www.dplusvastgoed.be en klik op de detailpagina van de woning.
Voor een bezoek of meer info BEL: 0475 59 90 00 of mail naar yves@dplusvastgoed.be
| Naam |
Yves Dockx
|
| Prijs |
€ 379.000
|
Gelijkvloers
| 2x Slaapkamer |
|
| Berging |
|
| Parkeerplaats |
|
| Terras |
|
| EPC |
135 kWh/m2/jaar
|
| Label |
|
135 kWh/m2/jaar
| Airco |
Ja
|
| Beglazing |
Dubbele
|
| Verdieping |
3
|
| Bouwjaar |
2011
|
| Elektriciteitscertificaat |
Ja, Conform
|
| Lift |
Neen
|
| Bouwvergunning |
Bouw vergund
|
| Verkavelingsvergunning |
Niet ingegeven
|
| Voorkooprecht |
Neen
|
| Beschermd erfgoed |
Neen
|
| Renovatieplicht |
Niet ingegeven
|
Laten we de kosten berekenen
false
1.5%
20 jaar
EUR/maand