D plus Vastgoed BV
Kleine Hooiweg 1 E
2220
Heist-op-den-Berg
E.info@dplusvastgoed.be
Te renoveren woning met 2 slpkm € 289.000
Nieuw
Schriekstraat 108, 2223 Schriek
Ref: YD
Deze charmante, te renoveren, vrijstaande woning staat op een ruim perceel grond en is gelegen aan de rand van Schriek.
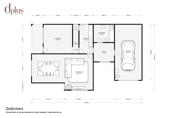
Het gelijkvloers bestaat uit een inkomhal, ruime woonkamer met zit-en eetkamergedeelte, kleine keuken, badkamer, berging en een inpandige garage.
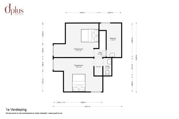
Op de eerste verdieping bevinden zich 2 ruime slaapkamers, een berging en een toilet.
Achteraan de woning voorbij het hekwerk vind je als verrassing nog een hele diepe tuin, alsook een overdekt terras.
Ontdek deze woning reeds via onze foto's en onze virtuele tour.
Ga hiervoor naar www.dplusvastgoed.be en klik op de detailpagina van de woning.
Voor een bezoek of meer info BEL: 0475 59 90 00 of mail naar Yves@dplusvastgoed.be
Het gelijkvloers bestaat uit een inkomhal, ruime woonkamer met zit-en eetkamergedeelte, kleine keuken, badkamer, berging en een inpandige garage.
Op de eerste verdieping bevinden zich 2 ruime slaapkamers, een berging en een toilet.
Achteraan de woning voorbij het hekwerk vind je als verrassing nog een hele diepe tuin, alsook een overdekt terras.
Ontdek deze woning reeds via onze foto's en onze virtuele tour.
Ga hiervoor naar www.dplusvastgoed.be en klik op de detailpagina van de woning.
Voor een bezoek of meer info BEL: 0475 59 90 00 of mail naar Yves@dplusvastgoed.be
Naam |
Yves Dockx
|
Prijs |
€ 289.000
|
Gelijkvloers
2x Slaapkamer |
|
EPC |
605 kWh/m2/jaar
|
Label |
|
605 kWh/m2/jaar
Beglazing |
Dubbele
|
Lift |
Neen
|
Bouwvergunning |
Bouw vergund
|
Verkavelingsvergunning |
Niet ingegeven
|
Voorkooprecht |
Neen
|
Beschermd erfgoed |
Neen
|
Renovatieplicht |
Niet ingegeven
|
Laten we de kosten berekenen
false
1.5%
20 jaar
EUR/maand