D plus Vastgoed BV
Kleine Hooiweg 1 E
2220
Heist-op-den-Berg
E.info@dplusvastgoed.be
Half open bebouwing met 3 slpkm € 369.000
Nieuw
Kinderstraat 103, 2547 Lint
Ref: YD
Deze charmante, doch te renoveren woning is zeer gunstig gelegen net buiten het centrum van Lint. Dichtbij bushalte, scholen en kleinhandelaars.
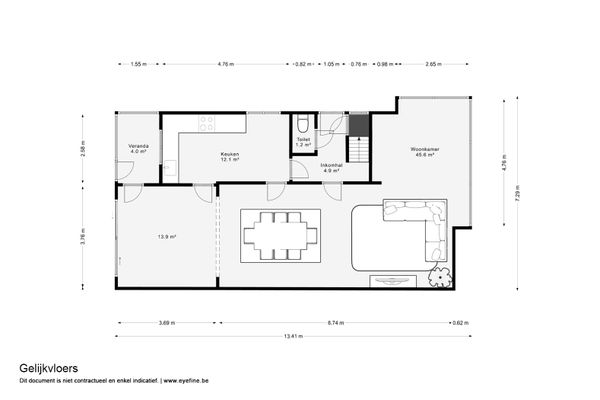
Op het gelijkvloers bevindt zich een inkomhal, apart toilet, keuken en ruime living met veel lichtinval, dit laatste door de aanwezigheid van enkele grote raampartijen.
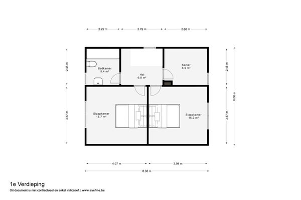
De tweede verdieping biedt ruimte aan 2 grote slaapkamers, een badkamer met bad, toilet en lavabo, alsook nog een 3e kleinere kamer.
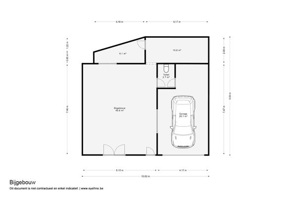
De veranda achteraan de woning kijkt uit op een kleine tuin, deels verhard, deel aangelegd met kunstgras. Achteraan de tuin bevindt zich tevens een ruim bijgebouw met garage.
Met EPC-label F valt deze woning onder de wetgeving van de renovatieplicht.
Bekijk nu reeds de foto's en de virtuele tour op onze website www.deplusvastgoed.be
Voor meer informatie of voor een bezoek bel 0475 59 90 00 of mail yves@dplusvastgoed.be
Op het gelijkvloers bevindt zich een inkomhal, apart toilet, keuken en ruime living met veel lichtinval, dit laatste door de aanwezigheid van enkele grote raampartijen.
De tweede verdieping biedt ruimte aan 2 grote slaapkamers, een badkamer met bad, toilet en lavabo, alsook nog een 3e kleinere kamer.
De veranda achteraan de woning kijkt uit op een kleine tuin, deels verhard, deel aangelegd met kunstgras. Achteraan de tuin bevindt zich tevens een ruim bijgebouw met garage.
Met EPC-label F valt deze woning onder de wetgeving van de renovatieplicht.
Bekijk nu reeds de foto's en de virtuele tour op onze website www.deplusvastgoed.be
Voor meer informatie of voor een bezoek bel 0475 59 90 00 of mail yves@dplusvastgoed.be
Naam |
Yves Dockx
|
Prijs |
€ 369.000
|
KI (niet geïndexeerd) |
€ 1.365
|
Gelijkvloers
3x Slaapkamer |
|
EPC |
538 kWh/m2/jaar
|
Label |
|
538 kWh/m2/jaar
Totale opp. grond |
522 m²
|
Beglazing |
Dubbele
|
Bouwjaar |
1968
|
Algemene staat |
Te renoveren
|
Elektriciteitscertificaat |
Neen
|
Lift |
Neen
|
Bouwvergunning |
Niet ingegeven
|
Verkavelingsvergunning |
Neen
|
Voorkooprecht |
Neen
|
Beschermd erfgoed |
Neen
|
Renovatieplicht |
Niet ingegeven
|
Laten we de kosten berekenen
false
1.5%
20 jaar
EUR/maand